建|売|分|譲|物|件|情|報

富士宮市野中13号

2階KURAのある家 2025年11月完成

天井高3m、ハイサッシで明るいリビング
1階と2階の間の蔵
玄関に大容量1.7帖の土間収納
2階主寝室のウォークインクローゼット
太陽光発電4.32Kw オール電化

価格4,890万円(税込)

所在地 静岡県富士宮市野中1005-24
路線・駅 JR身延線「富士宮駅」 約1,500m 徒歩約19分
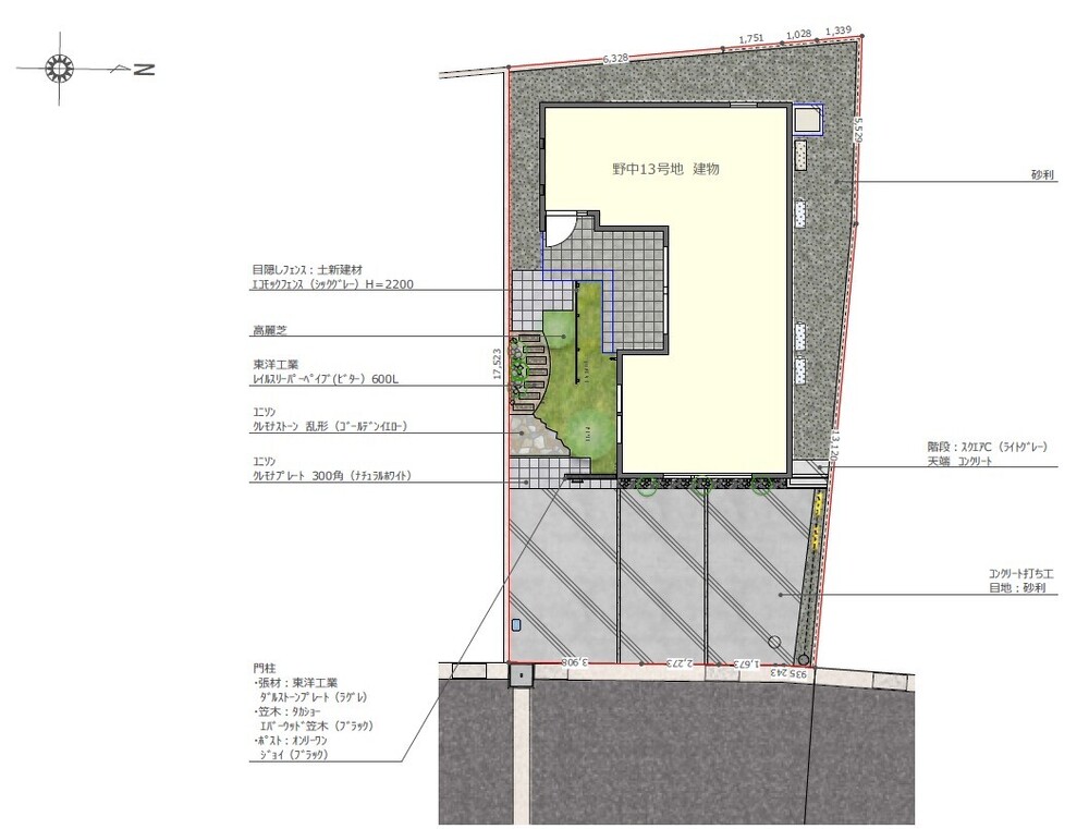
土地面積 177.23㎡(53.61坪)
建物面積 111.89㎡(33.84坪)
学校 黒田小学校 約790m 徒歩約10分・ 富士宮第三中学校 約1,300m 徒歩約17分

間取り3LDK+KURA

配置図

ミサワホームの蔵のある家

太陽光発電4.32kw、制震装置MGEO、照明、カーテン、エアコン、家具、外構付





アクセス

【カーナビ検索】富士宮市野中1005-24
【マップコード】72 433 859*33

物件概要

富士宮市野中13号

物件種別 建売住宅 完成時期 2025年11月完成予定
総戸数 3戸 販売戸数 3戸
接道状況 幅員東側6m 建ぺい率/容積率 50% ・ 80%
私道面積 土地の権利形態 所有権
セットバック 地目 宅地
建物構造 木質パネル接着工法 建築確認番号 第ERI-25017966号
取引態様 売主 駐車場 有 カースペース
築年月 2025年11月予定 用途地域 第一種低層住居専用地域
都市計画 市街化 国土法提出
建物現況 外構工事中 物件番号
学校 黒田小学校・富士宮第三中学校 周辺施設 ファミリーマート 富士宮野中店 約600m・杏林堂 富士宮浅間店 約1,100m・イオンモール富士宮 約1,210m
引渡(入居予定日) 相談
備考・制限事項 ※備品等は価格に含まれません
物件設備
公営水道・公共下水・東京電力・制震装置MGEO・オール電化・太陽光発電
情報更新日 2025年10月10日 次回更新予定日 2025年10月24日